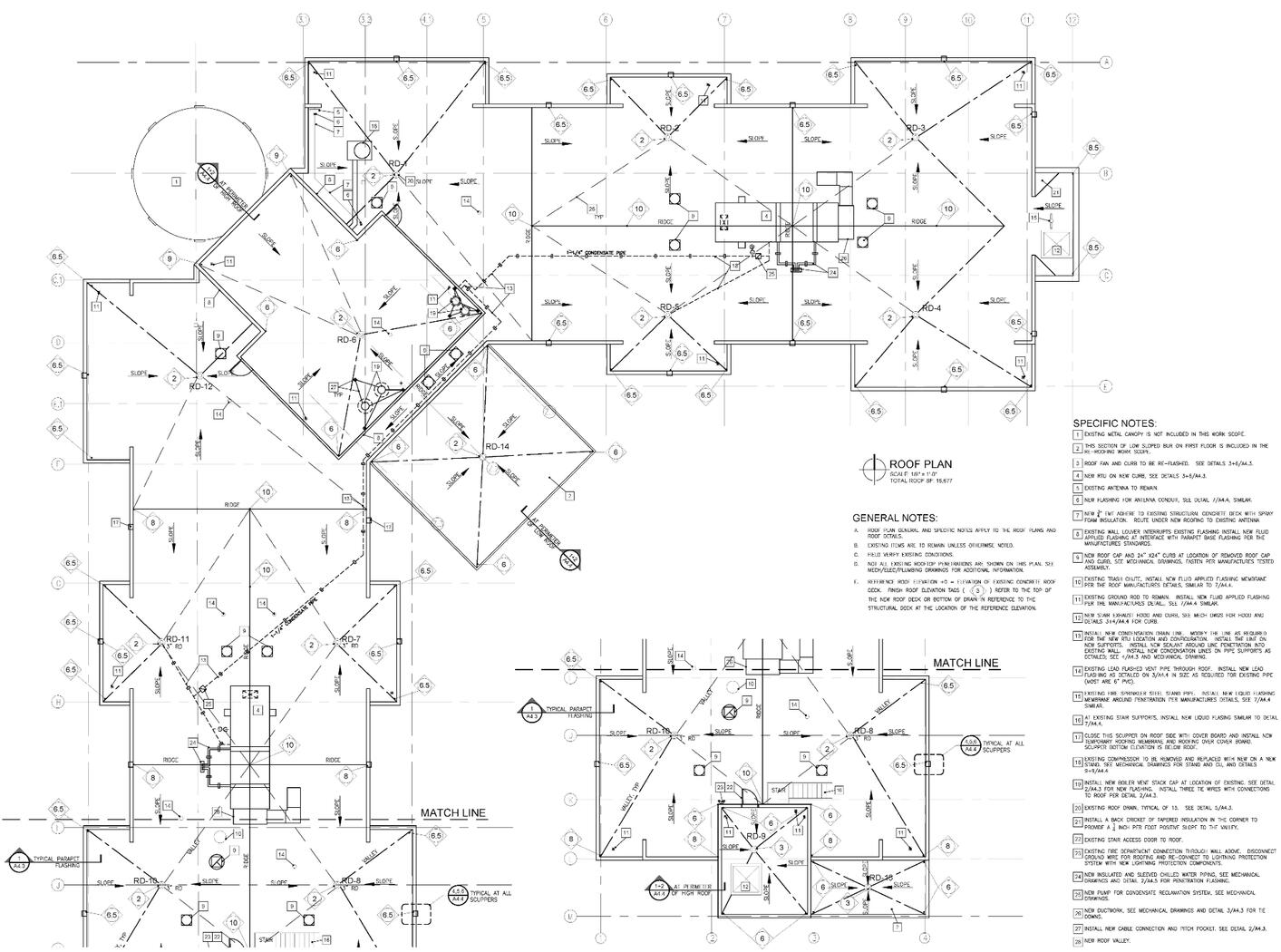
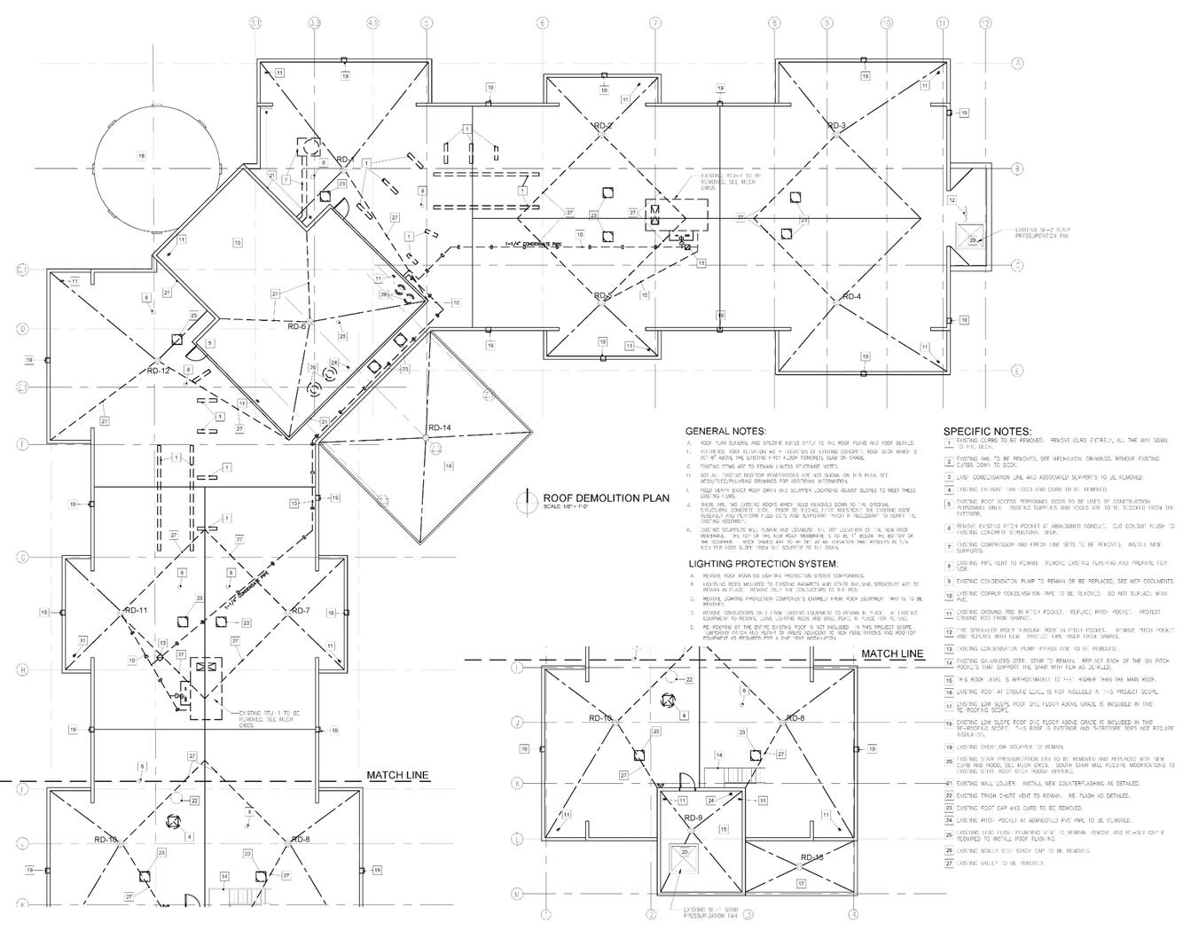
The University of Tampa Brevard Hall Re-Roofing
Tampa, Florida
Brevard Hall roof was suffering some leakage problems and roof membranes were in a poor status. An infrared roof scan was made to detect any water damage on the insulation which there was. All roof membrane and insulation was removed which in results LWIC was placed this time, topping with Siplast membrane products. New roof curbs and pipe were added on the process.









